Description
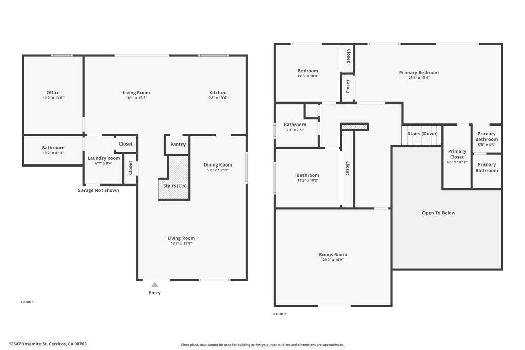
This beautifully remodeled 4-bedroom, 3-bath residence perfectly blends style, comfort, and functionality. Built by Ponderosa Homes, renowned for exceptional craftsmanship and quality, this house truly embodies the essence of your dream home. Bathed in natural light, the open-concept floor plan is designed to embrace our Southern California’s year-round sunshine. This gorgeous house spans over 2,550 sq/ft of elegant living space, offering a spacious living room with vaulted ceiling, perfect for entertaining friends and guests, a cozy family room ideal for family get-togethers, a completely rebuilt, oversized kitchen is a chef’s delight, featuring recessed lighting, state-of-the art appliances, quartz counter-top and plenty of custom cabinets and cupboards to satisfy your storage needs. Downstairs, you will find a versatile bedroom transformed into a coveted and expansive home office or it can function as a study room for the kids with its own upgraded bathroom. Upstairs features three spacious bedrooms, including a gorgeous master suite with a walk-in closet, upgraded flooring, newly installed double-pane windows that offer pure serenity and a relaxing lounge area for you to unwind before bedtime. A bonus room, that is twice the size of a typical bedroom, with elevated ceiling, an open view and it offers endless possibilities where you can create your own entertainment and gaming haven, or as an additional master suite. After a long day’s work, you deserve to unwind and relax in one of the larger backyards in Cerritos, with a manicured lawn, nature’s bounty of apples, tangerines, oranges, and persimmons trees, high enclosures for privacy, it is truly an oasis that will naturally calm, relax and reinvigorate your spirit. A dedicated laundry area, copper piping, manicured lawn with newly applied sods, freshly painted interior and exterior, all brand-new double-pane windows, new sprinkler system, newly installed automatic garage opener, track, torsion springs and sensors, parking space for a full-sized luxury RV and many more amenities. This house is located in the most prized area of Cerritos. A short walk to the civic center, award winning library, the world-famous Cerritos Performing Arts Center, Trader Joe’s, top ranked Cerritos High School and minutes’ drive to Whitney High School, the number one ranked high school in California (ranked by U.S. News & World Report 2025.) Come and see! This house is ready to warmly welcome you home!
-
4BEDS
-
0.15ACRES
-
3BATHS
-
01/2 BATHS
-
2,553SQFT
-
$646$/SQFT
Description
This beautifully remodeled 4-bedroom, 3-bath residence perfectly blends style, comfort, and functionality. Built by Ponderosa Homes, renowned for exceptional craftsmanship and quality, this house truly embodies the essence of your dream home. Bathed in natural light, the open-concept floor plan is designed to embrace our Southern California’s year-round sunshine. This gorgeous house spans over 2,550 sq/ft of elegant living space, offering a spacious living room with vaulted ceiling, perfect for entertaining friends and guests, a cozy family room ideal for family get-togethers, a completely rebuilt, oversized kitchen is a chef’s delight, featuring recessed lighting, state-of-the art appliances, quartz counter-top and plenty of custom cabinets and cupboards to satisfy your storage needs. Downstairs, you will find a versatile bedroom transformed into a coveted and expansive home office or it can function as a study room for the kids with its own upgraded bathroom. Upstairs features three spacious bedrooms, including a gorgeous master suite with a walk-in closet, upgraded flooring, newly installed double-pane windows that offer pure serenity and a relaxing lounge area for you to unwind before bedtime. A bonus room, that is twice the size of a typical bedroom, with elevated ceiling, an open view and it offers endless possibilities where you can create your own entertainment and gaming haven, or as an additional master suite. After a long day’s work, you deserve to unwind and relax in one of the larger backyards in Cerritos, with a manicured lawn, nature’s bounty of apples, tangerines, oranges, and persimmons trees, high enclosures for privacy, it is truly an oasis that will naturally calm, relax and reinvigorate your spirit. A dedicated laundry area, copper piping, manicured lawn with newly applied sods, freshly painted interior and exterior, all brand-new double-pane windows, new sprinkler system, newly installed automatic garage opener, track, torsion springs and sensors, parking space for a full-sized luxury RV and many more amenities. This house is located in the most prized area of Cerritos. A short walk to the civic center, award winning library, the world-famous Cerritos Performing Arts Center, Trader Joe’s, top ranked Cerritos High School and minutes’ drive to Whitney High School, the number one ranked high school in California (ranked by U.S. News & World Report 2025.) Come and see! This house is ready to warmly welcome you home!
Based on information from California Regional Multiple Listing Service, Inc. as of 2026-01-17T17:30:09.72. This information is for your personal, non-commercial use and may not be used for any purpose other than to identify prospective properties you may be interested in purchasing. Display of MLS data is deemed reliable but is not guaranteed accurate by the MLS or American Real Estate List & Sell. Licensed in the State of California, USA.
