Description
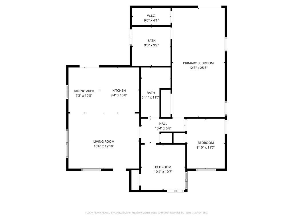
This Burbank adjacent home is on a quiet tree lined street and is completely gated so you can use the whole property. The front gate is automatic. The updated driveway also has a cement pad for extra parking. A double detached garage is located toward the back side of the property with it's own yard. The open concept floor plan has a great indoor/outdoor vibe. The kitchen is located in the best spot! Easily accessed from the back yard for outdoor entertaining or hosting a family party inside with plenty of counter space for buffet. The living room/dining room combination is freshly painted with recessed lights and crown molding offering an updated space with room for your own touches. The onsuite master bedroom is enormous, (about 25 feet long) with sliding glass door to the private back yard. The private master onsuite bathroom is updated with sizable glass shower, dual vanity and plenty of storage. The other two bedrooms are located down the hallway and are comfortably sized, one is about 10' x 10' and the other is about 8' x 11'. These bedrooms are close to the hallway bathroom with dual sink vanity. The back yard is lush with fruit trees and room for so much fun. Upgraded electrical panel, HVAC, updated copper plumbing in 2013. Double detached garage with laundry hook ups and utility sink. Inspections are available for review, the house is solid!
-
3BEDS
-
0.16ACRES
-
2BATHS
-
01/2 BATHS
-
1,326SQFT
-
$618$/SQFT
Description
This Burbank adjacent home is on a quiet tree lined street and is completely gated so you can use the whole property. The front gate is automatic. The updated driveway also has a cement pad for extra parking. A double detached garage is located toward the back side of the property with it's own yard. The open concept floor plan has a great indoor/outdoor vibe. The kitchen is located in the best spot! Easily accessed from the back yard for outdoor entertaining or hosting a family party inside with plenty of counter space for buffet. The living room/dining room combination is freshly painted with recessed lights and crown molding offering an updated space with room for your own touches. The onsuite master bedroom is enormous, (about 25 feet long) with sliding glass door to the private back yard. The private master onsuite bathroom is updated with sizable glass shower, dual vanity and plenty of storage. The other two bedrooms are located down the hallway and are comfortably sized, one is about 10' x 10' and the other is about 8' x 11'. These bedrooms are close to the hallway bathroom with dual sink vanity. The back yard is lush with fruit trees and room for so much fun. Upgraded electrical panel, HVAC, updated copper plumbing in 2013. Double detached garage with laundry hook ups and utility sink. Inspections are available for review, the house is solid!
Related Properties
Based on information from California Regional Multiple Listing Service, Inc. as of 2026-01-25T00:26:08.443. This information is for your personal, non-commercial use and may not be used for any purpose other than to identify prospective properties you may be interested in purchasing. Display of MLS data is deemed reliable but is not guaranteed accurate by the MLS or American Real Estate List & Sell. Licensed in the State of California, USA.
